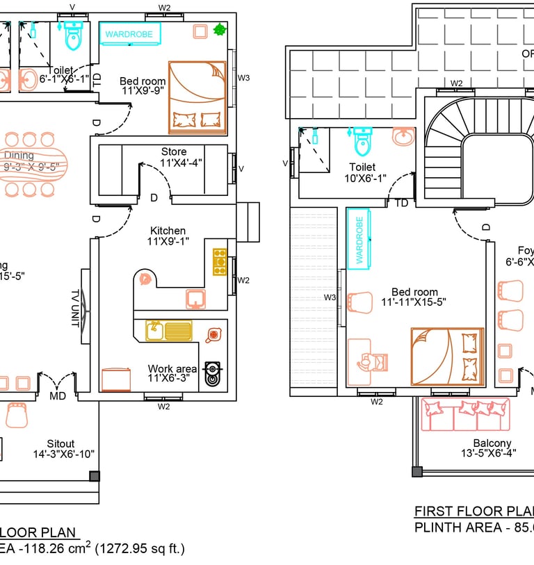
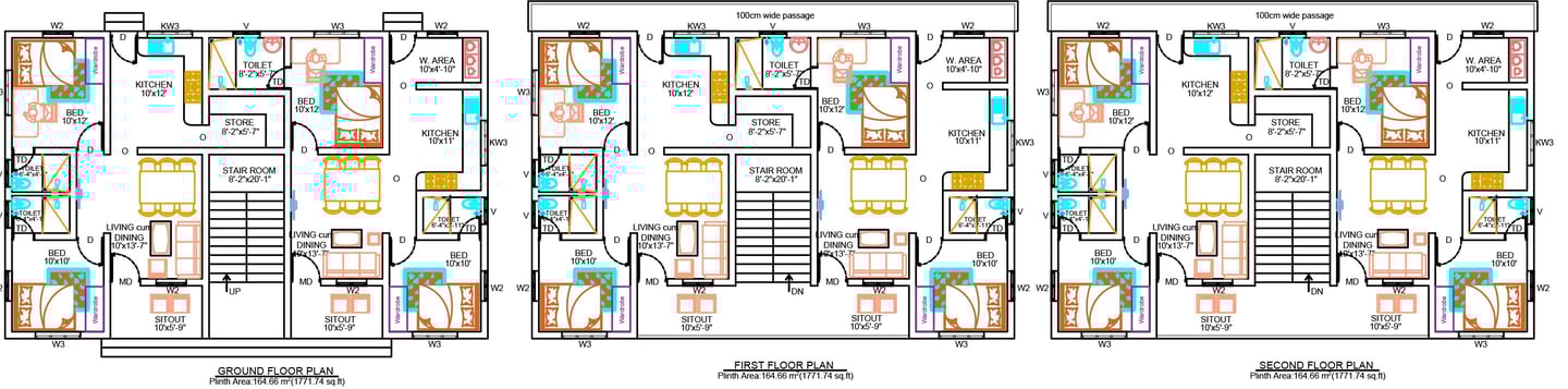
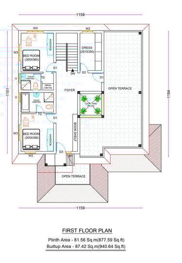
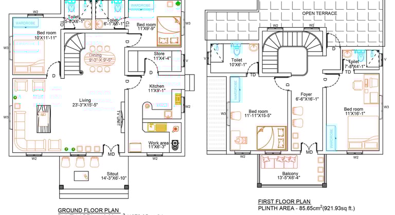
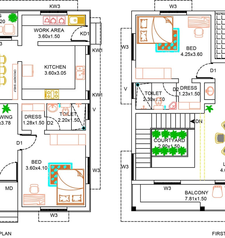
Architectural drawing

we made of Architectural drawing according to a set if conventions Which include Particular views, Floor plans, Sections, Elevations, Site plan, Service plan and Location plan etc.and Sheet sizes, Units of measurements, and Scales annotation and cross referencing.